Menu

Engineering

Our experts provide tailored calculation and design within 24 hours.
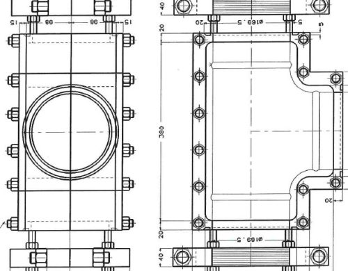
To address even the most demanding leak sealing challenges, Pretoseal custom manufactures each metallic part to ensure every product fits the infrastructure to the millimetre.

Plan design

After receiving precise measurements, our engineering department draws up plans for a custom solution. Each solution is tailored to the specific issue, and an answer is sent within 24 hours of the request. In this context, our team takes all necessary measures to resolve leaks as quickly as possible, in order to minimize safety, environmental and economic impact.

Petroseal Engineering
Tailor-made PETROSEAL solution
Petroseal High reactive team

The three steps to receive your personalized PETROSEAL solution

  • Get in touch with one of our experts
  • Take accurate measurements of the equipment using the appropriate tools
  • Send the measurements and pictures of the leak to the PETROSEAL team
error: Content is protected !!

Discover leaks sealed by Petroseal

By filling the form, you will be able to download files containing many leaks managed by Petroseal’s team.

Thank you for completing the form